The TalkLatest news and views from Terra Hayfield Marketing Team 12/11/2021 Hayfield Marketing Team 12/11/2021 Planning Application Submitted for 49 Homes and an Extensive Flood Alleviation Scheme in Northamptonshire Read More Hayfield Marketing Team 04/11/2021 Hayfield Marketing Team 04/11/2021 Terra Submits Plans for 35 New Homes in Warwickshire’s Lighthorne Heath Read More Hayfield Marketing Team 04/11/2021 Hayfield Marketing Team 04/11/2021 Terra Secures a Hybrid Agreement to Promote and Part-Purchase 49-Acres of the Swindon New Eastern Villages Allocation Read More Hayfield Marketing Team 13/10/2021 Hayfield Marketing Team 13/10/2021 Terra Bolsters the In-house Team with the Appointment of a Strategic Land Manager Read More Hayfield Marketing Team 01/10/2021 Hayfield Marketing Team 01/10/2021 Planning Application Submitted to Alleviate South Worcestershire’s Housing Supply Shortage Read More Hayfield Marketing Team 06/07/2021 Hayfield Marketing Team 06/07/2021 Terra Appoints a Strategic Planning Director to Drive Rapid Growth Read More Hayfield Marketing Team 13/04/2021 Hayfield Marketing Team 13/04/2021 Terra puts forward 96-acres of Banwell Garden Village for 600 new homes in North Somerset Read More Hayfield Marketing Team 15/03/2021 Hayfield Marketing Team 15/03/2021 Terra disposes of 10-acre Nottinghamshire residential site to Bloor Homes Read More Hayfield Marketing Team 05/03/2021 Hayfield Marketing Team 05/03/2021 Planning application submitted for 50 homes in Melksham, West Wiltshire Read More Hayfield Marketing Team 05/03/2021 Hayfield Marketing Team 05/03/2021 Terra secures a promotion agreement for a 47-acre site in the Staffordshire village of Acton Trussell Read More Hayfield Marketing Team 05/03/2021 Hayfield Marketing Team 05/03/2021 Terra secures a promotion agreement for a 38-acre site in Swadlincote, South Derbyshire Read More Hayfield Marketing Team 04/03/2021 Hayfield Marketing Team 04/03/2021 First phase of £115m 72-acre ‘canal village’ in Warwickshire gets the green light Read More Newer Posts
Hayfield Marketing Team 12/11/2021 Hayfield Marketing Team 12/11/2021 Planning Application Submitted for 49 Homes and an Extensive Flood Alleviation Scheme in Northamptonshire Read More
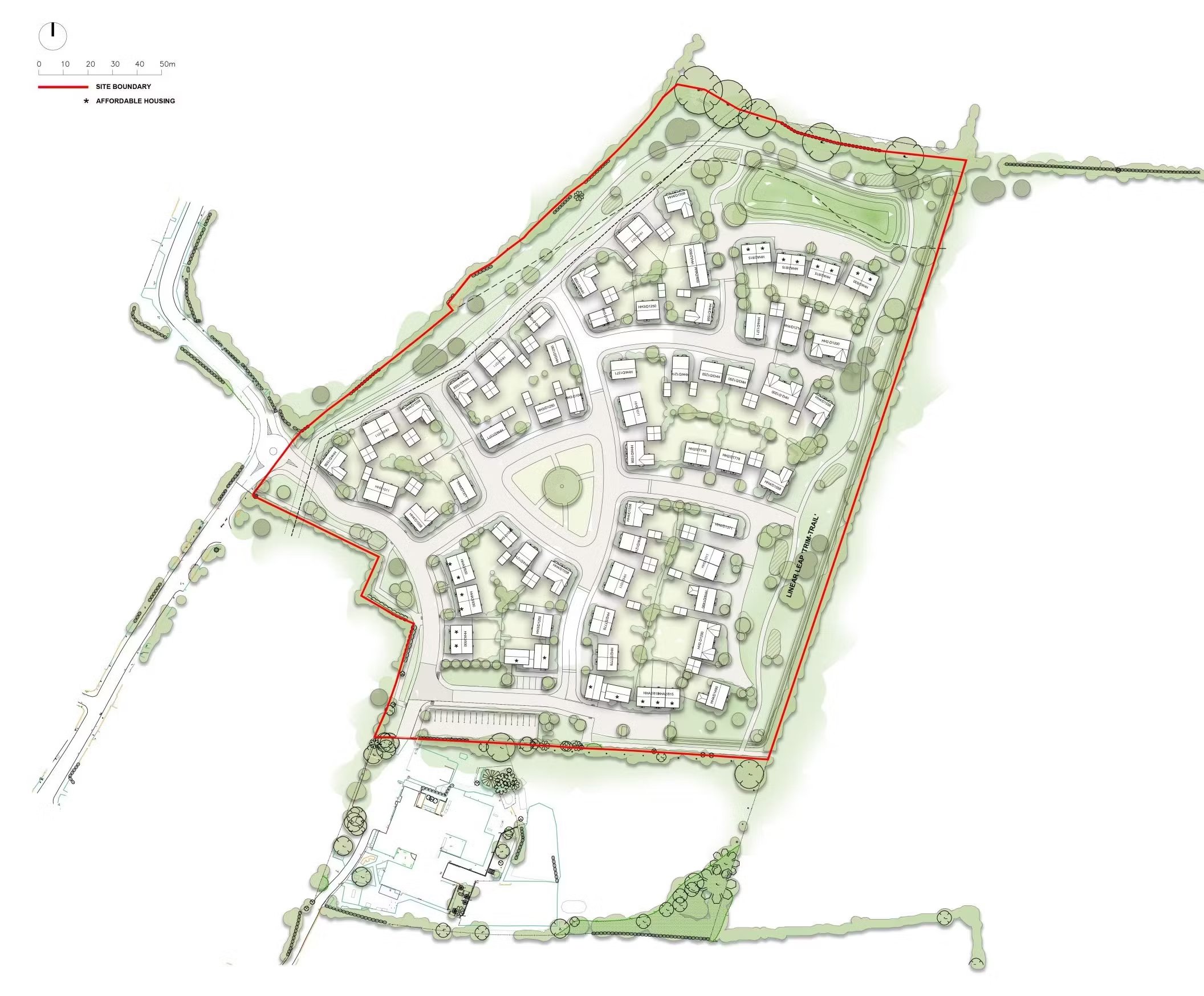
Hayfield Marketing Team 04/11/2021 Hayfield Marketing Team 04/11/2021 Terra Submits Plans for 35 New Homes in Warwickshire’s Lighthorne Heath Read More
Hayfield Marketing Team 04/11/2021 Hayfield Marketing Team 04/11/2021 Terra Secures a Hybrid Agreement to Promote and Part-Purchase 49-Acres of the Swindon New Eastern Villages Allocation Read More
Hayfield Marketing Team 13/10/2021 Hayfield Marketing Team 13/10/2021 Terra Bolsters the In-house Team with the Appointment of a Strategic Land Manager Read More
Hayfield Marketing Team 01/10/2021 Hayfield Marketing Team 01/10/2021 Planning Application Submitted to Alleviate South Worcestershire’s Housing Supply Shortage Read More
Hayfield Marketing Team 06/07/2021 Hayfield Marketing Team 06/07/2021 Terra Appoints a Strategic Planning Director to Drive Rapid Growth Read More
Hayfield Marketing Team 13/04/2021 Hayfield Marketing Team 13/04/2021 Terra puts forward 96-acres of Banwell Garden Village for 600 new homes in North Somerset Read More
Hayfield Marketing Team 15/03/2021 Hayfield Marketing Team 15/03/2021 Terra disposes of 10-acre Nottinghamshire residential site to Bloor Homes Read More
Hayfield Marketing Team 05/03/2021 Hayfield Marketing Team 05/03/2021 Planning application submitted for 50 homes in Melksham, West Wiltshire Read More
Hayfield Marketing Team 05/03/2021 Hayfield Marketing Team 05/03/2021 Terra secures a promotion agreement for a 47-acre site in the Staffordshire village of Acton Trussell Read More
Hayfield Marketing Team 05/03/2021 Hayfield Marketing Team 05/03/2021 Terra secures a promotion agreement for a 38-acre site in Swadlincote, South Derbyshire Read More
Hayfield Marketing Team 04/03/2021 Hayfield Marketing Team 04/03/2021 First phase of £115m 72-acre ‘canal village’ in Warwickshire gets the green light Read More